服務熱線
4006-598-119
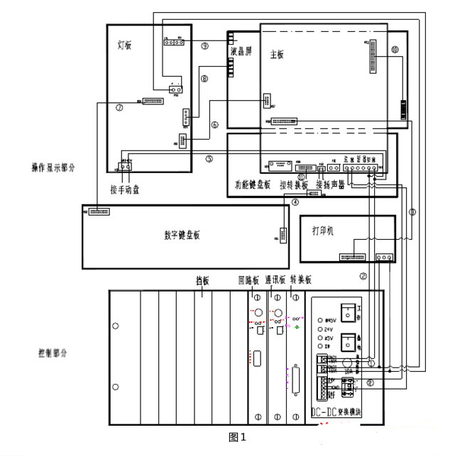
主機分為操作顯示部分、控制部分兩個單元,兩者之間通過導線相連。
1)主機操作顯示部分及控制部分結構如圖1所示。

上圖接線說明:
⑴背光、打印機5V:兩根,液晶背光、打印機工作電源線。
⑵主板5V:兩根,主板工作電源線。
⑶打印機數據線:26P扁平信號線。
⑷鍵盤并行數據線:10P扁平信號線。
⑸燈板5V:兩根,燈板工作電源線。
⑹燈板數據線:10P扁平信號線。
⑺鍵盤掃描線:20P扁平信號線。
⑻觸屏數據線:4線柔性電纜。
⑼液晶背光:2組共4線,驅動液晶背光照明電源線。注意:此線為高壓!
⑽液晶數據線:34線專用液晶數據電纜。
⑾轉換板數據線:16P扁平信號線。
⑿24V電源線:兩根,主板工作電源線。
2)回路板、通訊板(232、485)、轉換板結構說明如圖2所示。

每個回路板及通訊板上均設有1個代表個位的十進制編碼開關和代表十位的插針設置開關, 其中短路塊短路插針設置開關的第1和第2 針表示“0”,短路第2和第3 針表示 “1”, 短路第3和第4 針表示“2”。
圖例:回路板短路插針設置開關十位為0、編碼開關個位為1,則--回路號為1號,第
二回路號為2號。
3)DC-DC變換模塊結構如圖3所示。

4)GST9000控制器母板結構說明如圖4所示。

母板安裝在主機控制部分的底部,通過端子與DC-DC變換模塊相連。母板上有十個通道插槽,可分別插轉換板、回路板、通訊板。本控制器-多可擴展為四個母板箱。
并行數據總線:用于系統的擴展
通道槽:插轉換板、回路板、通訊板
XP3:與DC-DC變換模塊相連
ZAn、ZBn(n=1~20):1~10通道的信號總線端子
注意:當DC-DC變換模塊的開關關閉時,總線控制24V并未關斷,如需插拔主機箱內的 線路板,請務必先關閉主、備電電源。