服務熱線
4006-598-119
根據《消防應急照明和疏散指示系統》GB 17945-2024表B.6規定,出口標志燈分為兩類,即安全出口標志燈和疏散出口標志燈,見下表。

該標準3.14條消防應急疏散標志燈具的術語解釋為:用圖形和/或文字完成下述功能的燈具:a) 指示安全出口、疏散出口、避難層(間);并在注2中說明,安全出口是指供人員安全疏散用的樓梯間和室外樓梯的出入口或直通室內外安全區域的出口;疏散出口是指疏散路徑上的所有出口。
因此,根據《消防應急照明和疏散指示系統》GB 17945-2024第3.14條的定義與注釋,設置安全出口標志燈的出入口包括:
1、樓梯間和室外樓梯的出入口;
2、直通室內外安全區域的出口。
樓梯間的出入口還應包括防煙樓梯間前室和防煙樓梯間與消防電梯的合用前室的出入口(消防電梯獨立前室出入口通常不應設置疏散出口標志燈或安全出口標志燈)。
《建筑防火通用規范》GB 55037-2022術語12、《建筑設計防火規范》GB 50016-2014(2018年版)第2.1.14條中對安全出口的術語解釋與《消防應急照明和疏散指示系統》GB 17945-2024第3.14中的術語解釋完全相同;《建筑防火通用規范》GB 55037-2022對疏散出口的術語解釋的表述略有不同,但本質相同:疏散出口是指建筑中在火災時供人員逃離著火區域或建筑的出口,包括安全出口和房間疏散門。
但《消防應急照明和疏散指示系統技術標準》GB 51309-2018第3.2.8條的條文說明中則有另外一種解釋:
安全出口是直通室外安全區域的出口,疏散出口是供人員安全疏散用的樓梯間的出入口或直通室內安全區域的出口。
因此,根據《消防應急照明和疏散指示系統技術標準》GB 51309-2018第3.2.8條的條文說明中對安全出口和疏散出口的解釋,只有直通室外安全區域的出口才能設置安全出口標志燈,而樓梯間(含防煙樓梯間前室或合用前室)出入口應設置疏散出口標志燈,圖集19D702-7 《應急照明設計與安裝》即是按照該條文解釋編制的,其目的是為了區分室內安全區域與室外安全區域。
如下圖。

很明顯,規范間對安全出口和疏散出口的解釋有較大差異,但《建筑防火通用規范》GB 55037-2022和《消防應急照明和疏散指示系統》GB 17945-2024的術語解釋具有法律效力,且都屬于強制性 標準;而《消防應急照明和疏散指示系統技術標準》GB 51309-2018第3.2.8條的條文說明和標準設計圖集不具有法律效力,因此,樓梯間及其前室出入口應設置安全出口標志燈。
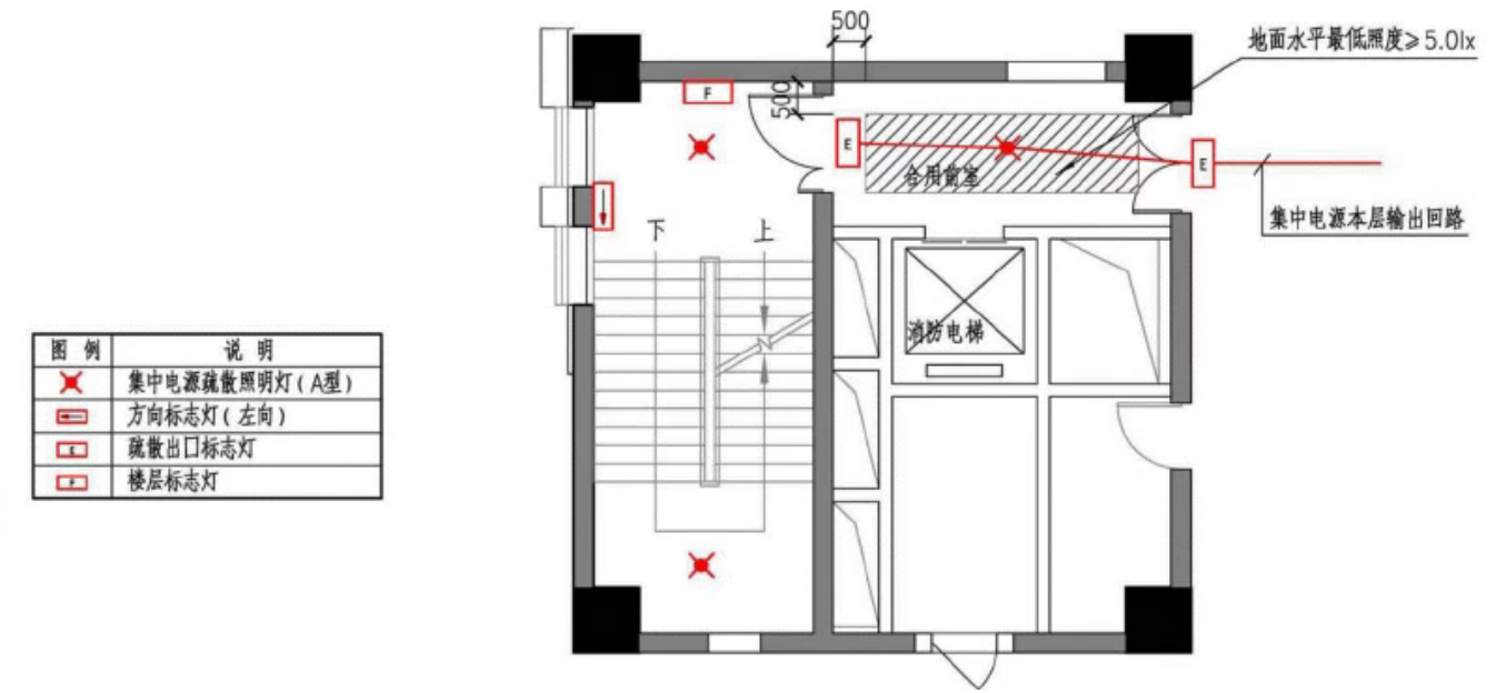
疏散樓梯間及其前室(或合用前室)出入口設置安全出口標志燈在項目中也廣泛應用,見下圖案例。

但從目前來看,電氣行業內的共識還是傾向在疏散樓梯間出入口設置疏散出口標志燈(直通室外的疏散樓梯間出口除外),或許后續《消防應急照明和疏散指示系統技術標準》修訂時會重新考慮“安全出口”定義的一致性問題。